aufgabe:
Neubau eines Geschosswohnungsbaus in Stahlbetonskelettbauweise mit 116 Wohnungen und 8 Wohnbüros sowie Tiefgarage
auftraggeber:
Projektentwicklung LP 1-4: Implenia Marienplatz Hochhaus GmbH, Raunheim
Realisierung LP 5-8: Implenia Hochbau GmbH, Niederlassung Großprojekte, Raunheim
verfahrensart:
Konzeptvergabe nach städtebaulichem Realisierungswettbewerb Marienplatz 2019, 1. Preis
Vergabe nach Einladungswettbewerb Hochhaus Marienplatz 2022, 1. Preis
größe:
rd. 17.700qm oberirdische BGF R+S
fertigstellung:
geplant Anfang 2029
fachplaner Wettbewerb:
bauart (Brandschutz) | transsolar (Energiekonzept) | GTL (Landschaftsplanung) | tragraum (statische Beratung) | gbm (Modellbau Wettbewerb) |
fachplaner Realisierung:
Fast + Epp GmbH (Tragwerk, Statik) | IGP Ingenieure (TGA) | SGS Engineering GmbH (Akustik/Bauphysik) | GTL Landschaftsarchitektur Part mbB (Landschaftsplanung) | HTA-Sachverständigenbüro (Brandschutz)
Arcadis Germany GmbH (Baugrund) | Hess Timber GmbH (Beratung Holzbau)
mitarbeit:
Andrea Weber (PL), Moritz Bayer, Mariana Georgieva, Tim Heidland, Kathrein Hildebrandt, Hannah Jacobs, Isabelle Pertack, Alexander Grams (freie MA), Ann-Catrin Schleifer (freie MA), Toka Mohamed (stud.), Jan Tovar (stud.)
visualisierungen:
luxfeld digital art, Darmstadt |
Die zentrumsnahe Gesamtanlage ‚Marienplatz Darmstadt‘ verbindet die Darmstädter Innenstadt mit dem sog. Verlagsviertel und dem Campus der Hochschule Darmstadt. Stadtseitig erhält diese wichtige Ost-West-Verbindung ihren Auftakt als Hochpunkt durch das Wohnhochhaus, von dem aus eine Promenade nach Westen entlang der Mäanderbebauung (Geschosswohnungsbau) und der anschließenden Kita bis zur Fritz-Bauer-Straße führt.
Das städtebauliche Ensemble wird durch drei Bauherren auf drei Teilgrundstücken entwickelt: Hochhaus (Implenia Marienplatz Hochhaus GmbH), Mäander (Implenia II. Marienplatz Mäander GmbH) und Kita (Stadt Darmstadt).
Die Außenbereiche der Wohnbebauung werden durch die Figur der Gebäude zoniert. Die Freiflächen von Mäander und Hochhaus greifen ineinander über, sie sind nicht eingefriedet, sondern öffentlich durchwegt
Die gemeinschaftlich genutzten Dachgärten von Mäander und Sockelbau des Hochhauses liegen auf ähnlicher Höhe und bilden eine zweite freiräumliche Ebene. Mäander und Hochhaus sind ferner über ein gemeinsames Untergeschoss bzw. eine gemeinsame Tiefgarage miteinander verbunden.
Im Westen setzt die Kita die Mäanderstruktur fort. Sie ist jedoch konstruktiv wie funktional eigenständig.
Das Erscheinungsbild des Hochhauses ist geprägt durch die horizontale Bänderung seiner umlaufenden Balkone.
Balkonbepflanzungen in allen Geschossen, Fassadenbegrünungen im EG und Bepflanzungen der Dachterrassen mit Kleinbäumen und Sträuchern binden das Gebäude in das intensiv begrünte Umfeld des Marienplatzes ein.
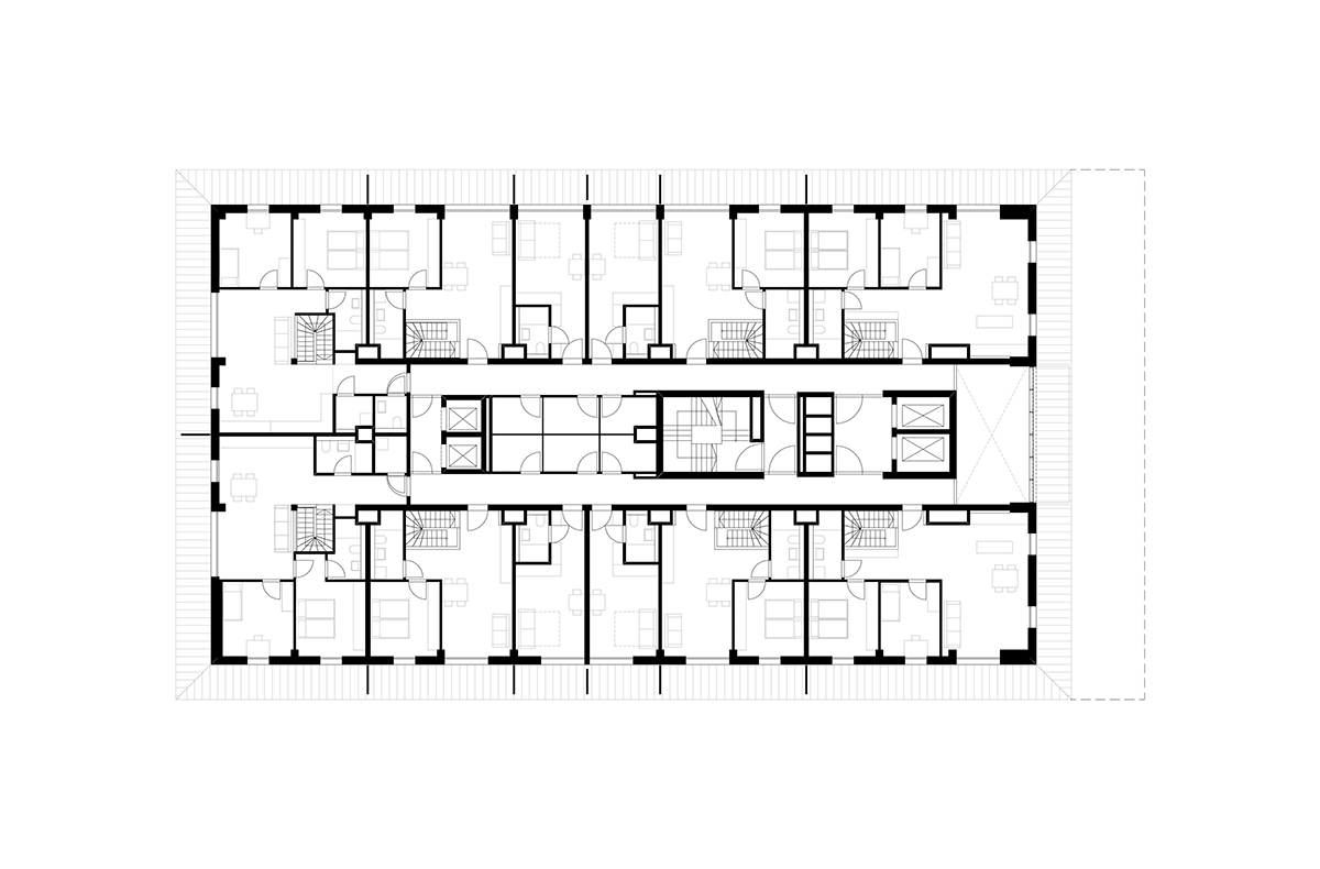
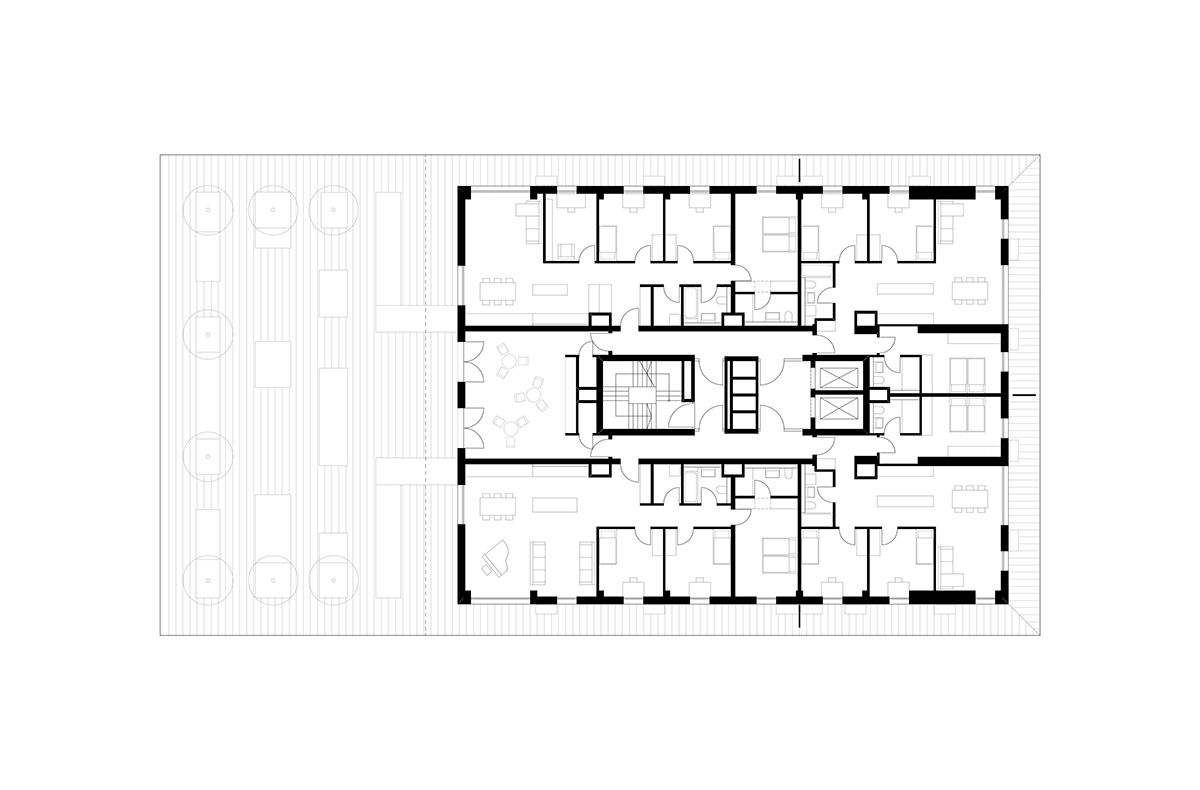
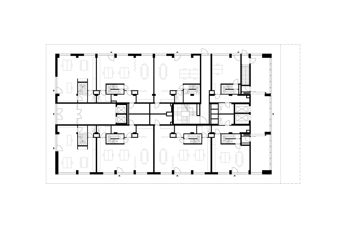
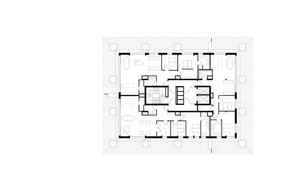
Das 16-geschossige Gebäude (zzgl. Penthouse als Staffelgeschoss) ist an der Innenstadt zugewandten Ecke der Hügelstraße/Heidelberger Straße postitioniert und bildet durch den zurückspringenden Sockel mit der darüberliegenden Auskragung (11 Vollgeschosse) einen öffentlichen Vorplatz nach Norden aus. Das Sockelgebäude (5 Vollgeschosse) schafft einen städtebaulichen Bezug zum Mäander.
Im Erdgeschoss finden sich zwei Hauptzugänge: Einen im Norden für die Bewohner des 5. – 16. OG und einen im Süden für die Bewohner von EG bis 4. OG. Neben den Foyerbereichen werden auch die acht zweigeschossigen Wohnbüroeinheiten direkt von den Außenbereichen erreicht.
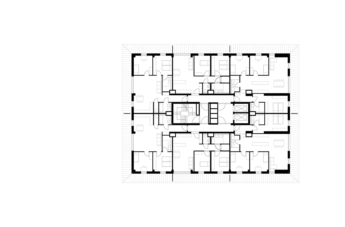
Das Hochhaus ist mit einer Tragstruktur in Stahlbetonskelettbau und nicht tragenden Außenwänden in Stahlleichtbauweise konzipiert. Die vertikale Erschließung wird durch einen Kern mit Sicherheitstreppenhaus und zwei Aufzügen im Norden, sowie zwei Aufzügen im Süden gewährleistet.
Um den Kern sind unterschiedliche Wohnungstypen (1-bis 5-Zimmer-Wohungen) angeordnet.
Die Stahlbetonskelettstruktur weist einen hohen Grad an Vorfertigung auf.
Die tragenden Geschossdecken sind als Halbfertigteilkonstruktionen (Filigrandeckenelemente mit Ortbetonergänzung) bei einer Spannweite von 7,50 m in beiden Richtungen geplant. Die Decken lasten auf Fertigteil-unterzügen auf. Die vertikale Lastableitung erfolgt über den Erschließungskern und einige Wände in aussteifenden Achsen, sowie die Stahlbetonstützen im Achsraster. Die umlaufend frei auskragenden Balkonfertigteile binden mittels Isokörben in den Deckenkonstruktionen ein.
Das energetische Konzept basiert auf der Nutzung von Fernwärme, welche über die Bodenflächen verteilt wird. Dieselben Flächen können im Sommer auch zur Kühlung des Gebäudes herangezogen werden (mithilfe von Absorbtionskälte).
Photovoltaik auf den Dachflächen liefert Strom für den Betrieb der Gebäudetechnik.
Die zentrumsnahe Gesamtanlage ‚Marienplatz Darmstadt‘ verbindet die Darmstädter Innenstadt mit dem sog. Verlagsviertel und dem Campus der Hochschule Darmstadt. Stadtseitig erhält diese wichtige Ost-West-Verbindung ihren Auftakt als Hochpunkt durch das Wohnhochhaus, von dem aus eine Promenade nach Westen entlang der Mäanderbebauung (Geschosswohnungsbau) und der anschließenden Kita bis zur Fritz-Bauer-Straße führt.
Das städtebauliche Ensemble wird durch drei Bauherren auf drei Teilgrundstücken entwickelt: Hochhaus (Implenia Marienplatz Hochhaus GmbH), Mäander (Implenia II. Marienplatz Mäander GmbH) und Kita (Stadt Darmstadt).
Die Außenbereiche der Wohnbebauung werden durch die Figur der Gebäude zoniert. Die Freiflächen von Mäander und Hochhaus greifen ineinander über, sie sind nicht eingefriedet, sondern öffentlich durchwegt
Die gemeinschaftlich genutzten Dachgärten von Mäander und Sockelbau des Hochhauses liegen auf ähnlicher Höhe und bilden eine zweite freiräumliche Ebene. Mäander und Hochhaus sind ferner über ein gemeinsames Untergeschoss bzw. eine gemeinsame Tiefgarage miteinander verbunden.
Im Westen setzt die Kita die Mäanderstruktur fort. Sie ist jedoch konstruktiv wie funktional eigenständig.
Das Erscheinungsbild des Hochhauses ist geprägt durch die horizontale Bänderung seiner umlaufenden Balkone.
Balkonbepflanzungen in allen Geschossen, Fassadenbegrünungen im EG und Bepflanzungen der Dachterrassen mit Kleinbäumen und Sträuchern binden das Gebäude in das intensiv begrünte Umfeld des Marienplatzes ein.
Das 16-geschossige Gebäude (zzgl. Penthouse als Staffelgeschoss) ist an der Innenstadt zugewandten Ecke der Hügelstraße/Heidelberger Straße postitioniert und bildet durch den zurückspringenden Sockel mit der darüberliegenden Auskragung (11 Vollgeschosse) einen öffentlichen Vorplatz nach Norden aus. Das Sockelgebäude (5 Vollgeschosse) schafft einen städtebaulichen Bezug zum Mäander.
Im Erdgeschoss finden sich zwei Hauptzugänge: Einen im Norden für die Bewohner des 5. – 16. OG und einen im Süden für die Bewohner von EG bis 4. OG. Neben den Foyerbereichen werden auch die acht zweigeschossigen Wohnbüroeinheiten direkt von den Außenbereichen erreicht.
Das Hochhaus ist mit einer Tragstruktur in Stahlbetonskelettbau und nicht tragenden Außenwänden in Stahlleichtbauweise konzipiert. Die vertikale Erschließung wird durch einen Kern mit Sicherheitstreppenhaus und zwei Aufzügen im Norden, sowie zwei Aufzügen im Süden gewährleistet.
Um den Kern sind unterschiedliche Wohnungstypen (1-bis 5-Zimmer-Wohungen) angeordnet.
Die Stahlbetonskelettstruktur weist einen hohen Grad an Vorfertigung auf.
Die tragenden Geschossdecken sind als Halbfertigteilkonstruktionen (Filigrandeckenelemente mit Ortbetonergänzung) bei einer Spannweite von 7,50 m in beiden Richtungen geplant. Die Decken lasten auf Fertigteil-unterzügen auf. Die vertikale Lastableitung erfolgt über den Erschließungskern und einige Wände in aussteifenden Achsen, sowie die Stahlbetonstützen im Achsraster. Die umlaufend frei auskragenden Balkonfertigteile binden mittels Isokörben in den Deckenkonstruktionen ein.
Das energetische Konzept basiert auf der Nutzung von Fernwärme, welche über die Bodenflächen verteilt wird. Dieselben Flächen können im Sommer auch zur Kühlung des Gebäudes herangezogen werden (mithilfe von Absorbtionskälte).
Photovoltaik auf den Dachflächen liefert Strom für den Betrieb der Gebäudetechnik.