aufgabe:
Innenräumliche Modernisierung einer Kindertagesstätte
auftraggeber:
Wissenschaftsstadt Darmstadt
verfahrensart:
Verhandlungsverfahren 2021
beauftragung:
LP 1-9
größe:
800 qm BGF
fertigstellung:
2026
fachplaner:
Lenz Weber Ingenieure (Brandschutz, Akustik) | Schlier Ingenieure (Tragwerk, Bauphysik, Energiekonzept) | IBL Ingenieurbüro Luéger
(Elektro) | Zeiger Consult (Küchenplanung) | CDM Smith (Schadstoffuntersuchung) | Tiede Ingenieurunternehmung (TGA)
Mitarbeit:
Fabian Mackeldey (PL), Uwe Neumeyer, Petra Lenschow, Martin Junglas (stud.), Toka Mohamed (stud.)
fotos:
Fabian Mackeldey, Darmstadt
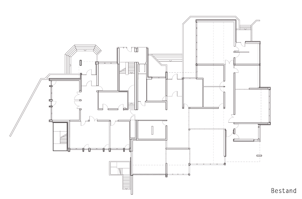
Die Kinderinsel im Darmstädter Stadtteil Eberstadt befindet sich im „Haus der Vielfalt“, einem Quartiersgebäude aus den 1970er-Jahren. Die Einrichtung wurde nicht als freistehende Kindertagesstätte konzipiert, sondern ist im Erdgeschoss eines multifunktionalen Hauses untergebracht, das neben der Kita auch einen Hort, Versammlungsräume, Beratungsstellen, ein Jugendzentrum sowie weitere soziale Einrichtungen beherbergt. Zwischen 2008 und 2012 wurden bereits die gesamte Gebäudehülle sowie die oberen Geschosse des Hauses saniert. Das Erdgeschoss hat eine Größe von ca. 600qm und beherbergt eine Kita mit ca. 90 Plätzen sowie einen Hort (20 Plätze), der zukünftig an anderer Stelle unterkommen wird.
Im Jahr 2021 schrieb die Wissenschaftsstadt Darmstadt im Rahmen eines VgV-Verfahrens die Planungsleistungen für die Anpassung der Kinderinsel an aktuelle räumliche, funktionale und technische Anforderungen aus. Ziel war es, die bestehende Einrichtung bedarfsgerecht zu modernisieren und zugleich langfristig zukunftsfähig weiterzuentwickeln.
Das architektonische Konzept folgt dem Ansatz einer Revitalisierung der vorhandenen Bausubstanz aus den 1970er-Jahren. Dabei gilt es, die konstruktiven Qualitäten und die charakteristische Materialität dieser Epoche zu bewahren und gleichzeitig funktional sowie energetisch auf den heutigen Stand zu bringen. Prägende Elemente wie Sichtbetonflächen, großzügige Spannweiten und modulare Grundrissstrukturen werden aufgearbeitet, ergänzt und in ein zeitgemäßes Nutzungskonzept überführt. Durch gezielte Eingriffe entsteht ein Dialog zwischen der bestehenden Struktur und neuen Bauteilen, der die ursprüngliche architektonische Haltung respektiert und zugleich neue räumliche Qualitäten schafft.
Ein Schwerpunkt lag bei der Bearbeitung auf der Verbesserung der Orientierung sowie der raumklimatischen Faktoren im Inneren: Neue Sichtachsen in den Außenraum sowie neue Lichtschaufel sorgen für eine deutlich verbesserte natürliche Belichtung der tiefen Grundrissbereiche und stärken zugleich die räumliche Verbindung zwischen Innen- und Außenraum.
Alle Maßnahmen wurden unter dem Gesichtspunkt der nachhaltigen Weiterverwendung der vorhandenen Gebäudestruktur getroffen. Tragwerk, Materialien und Oberflächen werden soweit möglich erhalten, instandgesetzt und in den neuen Entwurf integriert. Auf diese Weise kann die im Bestand gebundene graue Energie genutzt und der Ressourcenverbrauch reduziert werden.
Die Revitalisierung würdigt die architektonische Sprache der 1970er-Jahre als Ausdruck einer spezifischen Bau- und Gesellschaftsepoche. Charakteristische Materialien wie Sichtbeton, Klinker und Holzpaneele werden sorgfältig saniert und, wo erforderlich, ergänzt. Ziel der Maßnahmen ist es, den authentischen Charakter des Bestands zu bewahren und gleichzeitig neue Nutzungsanforderungen sensibel zu integrieren. Alt und Neu treten dabei nicht in Konkurrenz, sondern verbinden sich zu einer klar lesbaren, zeitübergreifenden Einheit.
Die Kinderinsel im Darmstädter Stadtteil Eberstadt befindet sich im „Haus der Vielfalt“, einem Quartiersgebäude aus den 1970er-Jahren. Die Einrichtung wurde nicht als freistehende Kindertagesstätte konzipiert, sondern ist im Erdgeschoss eines multifunktionalen Hauses untergebracht, das neben der Kita auch einen Hort, Versammlungsräume, Beratungsstellen, ein Jugendzentrum sowie weitere soziale Einrichtungen beherbergt. Zwischen 2008 und 2012 wurden bereits die gesamte Gebäudehülle sowie die oberen Geschosse des Hauses saniert. Das Erdgeschoss hat eine Größe von ca. 600qm und beherbergt eine Kita mit ca. 90 Plätzen sowie einen Hort (20 Plätze), der zukünftig an anderer Stelle unterkommen wird.
Im Jahr 2021 schrieb die Wissenschaftsstadt Darmstadt im Rahmen eines VgV-Verfahrens die Planungsleistungen für die Anpassung der Kinderinsel an aktuelle räumliche, funktionale und technische Anforderungen aus. Ziel war es, die bestehende Einrichtung bedarfsgerecht zu modernisieren und zugleich langfristig zukunftsfähig weiterzuentwickeln.
Das architektonische Konzept folgt dem Ansatz einer Revitalisierung der vorhandenen Bausubstanz aus den 1970er-Jahren. Dabei gilt es, die konstruktiven Qualitäten und die charakteristische Materialität dieser Epoche zu bewahren und gleichzeitig funktional sowie energetisch auf den heutigen Stand zu bringen. Prägende Elemente wie Sichtbetonflächen, großzügige Spannweiten und modulare Grundrissstrukturen werden aufgearbeitet, ergänzt und in ein zeitgemäßes Nutzungskonzept überführt. Durch gezielte Eingriffe entsteht ein Dialog zwischen der bestehenden Struktur und neuen Bauteilen, der die ursprüngliche architektonische Haltung respektiert und zugleich neue räumliche Qualitäten schafft.
Ein Schwerpunkt lag bei der Bearbeitung auf der Verbesserung der Orientierung sowie der raumklimatischen Faktoren im Inneren: Neue Sichtachsen in den Außenraum sowie neue Lichtschaufel sorgen für eine deutlich verbesserte natürliche Belichtung der tiefen Grundrissbereiche und stärken zugleich die räumliche Verbindung zwischen Innen- und Außenraum.
Alle Maßnahmen wurden unter dem Gesichtspunkt der nachhaltigen Weiterverwendung der vorhandenen Gebäudestruktur getroffen. Tragwerk, Materialien und Oberflächen werden soweit möglich erhalten, instandgesetzt und in den neuen Entwurf integriert. Auf diese Weise kann die im Bestand gebundene graue Energie genutzt und der Ressourcenverbrauch reduziert werden.
Die Revitalisierung würdigt die architektonische Sprache der 1970er-Jahre als Ausdruck einer spezifischen Bau- und Gesellschaftsepoche. Charakteristische Materialien wie Sichtbeton, Klinker und Holzpaneele werden sorgfältig saniert und, wo erforderlich, ergänzt. Ziel der Maßnahmen ist es, den authentischen Charakter des Bestands zu bewahren und gleichzeitig neue Nutzungsanforderungen sensibel zu integrieren. Alt und Neu treten dabei nicht in Konkurrenz, sondern verbinden sich zu einer klar lesbaren, zeitübergreifenden Einheit.