aufgabe:
Neubau einer 6-gruppigen Kindertagesstätte für 99 Kinder- 33 Krippenkinder (U3) und 66 Kindergartenkinder (Ü3)
auftraggeber:
Wissenschaftsstadt Darmstadt, vertr. durch den Eigenbetrieb Immobilienmanagement Darmstadt
verfahrensart:
Beauftragung nach städtebaulichem Realisierungswettbewerb Marienplatz 2019, 1. Preis
größe:
2.527,50 qm (BGF)
fertigstellung geplant:
Ende 2026
fachplaner:
Fast + Epp GmbH (Tragwerk, Akustik/ Bauphysik) | ITG Kofahl GmbH (TGA/ Elektro, Küchenplanung) | stadt landschaft plus Landschaftsarchitekten GmbH (Landschaftsplanung) | bauart Konstruktions GmbH & Co. KG (Brandschutz) | Geotechnik Gündling GmbH (Baugrund)
mitarbeit:
Gunther Brücker (PL), Moritz Bayer, Petra Lenschow, Uwe Neumeyer, Toka Mohamed (stud.)
visualisierung:
luxfeld digital art, Darmstadt
Die zentrumsnahe Gesamtanlage ‚Marienplatz Darmstadt‘ verbindet die Darmstädter Innenstadt mit dem sog. Verlagsviertel und dem Campus der Hochschule Darmstadt. Stadtseitig erhält diese wichtige Ost-West-Verbindung ihren Auftakt als Hochpunkt durch das Wohnhochhaus, von dem aus eine Promenade nach Westen entlang der Mäanderbebauung (Geschosswohnungsbau) und der anschließenden Kita bis zur Fritz-Bauer-Straße führt.
Das städtebauliche Ensemble wird durch drei Bauherren auf drei Teilgrundstücken entwickelt: Hochhaus (Implenia Marienplatz Hochhaus GmbH), Mäander (Implenia II. Marienplatz Mäander GmbH) und Kita (Stadt Darmstadt).
Die Außenbereiche der Wohnbebauung werden durch die Figur der Gebäude zoniert. Die Freiflächen von Mäander und Hochhaus greifen ineinander über, sie sind nicht eingefriedet, sondern öffentlich durchwegt
Die gemeinschaftlich genutzten Dachgärten von Mäander und Sockelbau des Hochhauses liegen auf ähnlicher Höhe und bilden eine zweite freiräumliche Ebene. Mäander und Hochhaus sind ferner über ein gemeinsames Untergeschoss bzw. eine gemeinsame Tiefgarage miteinander verbunden.
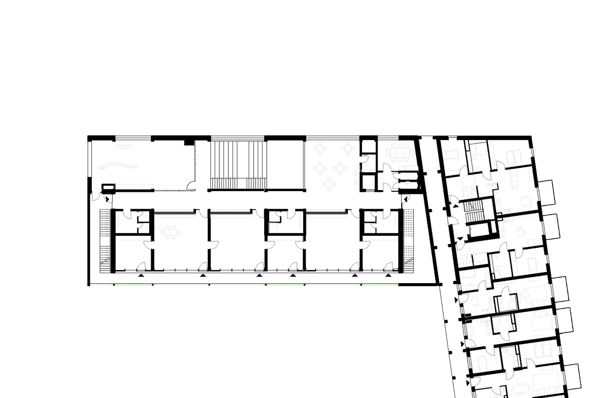
Im Westen setzt das Kitagebäude die Mäanderstruktur fort und bildet deren Abschluss. Es ist jedoch konstruktiv wie funktional eigenständig. Städtebaulich bildet das Kitagebäude das ‚Gegenüber‘ zur denkmalgeschützten Friedenskirche. Mit seinen zwei Vollgeschossen und darüber liegendem Freiflächengeschoss wahrt es die Priorität der Kirche und vermittelt zugleich zwischen den Höhen der westlich anschließenden Bebauung entlang der Fritz-Bauer-Straße und den höheren Wohngebäuden des ‚Mäanders‘. Zugleich vermittelt das Kita-Grundstück topographisch zwischen dem Niveau der Fritz-Bauer-Straße und dem etwa 2 m höher liegenden Marienplatz-Areals. Entlang der nach Norden zur Hügelstraße orientierten Eingangsseite der Kita verläuft die nach Westen ansteigende Promenade.
Die 6-gruppige Kita ist in zwei Vollgeschossen organisiert. Im Erdgeschoss finden sich drei Krippengruppen, im Obergeschoss drei Gruppenbereiche für die älteren Kinder. Beide Geschosse sind durch einen großzügigen, zweigeschossigen Foyerbereich mit raumbreiter Treppenanlage verknüpft. Außerdem verbinden auch der Flucht dienende außenliegende Treppen in Kombination mit einer vor der Südfassade angeordnetem Balkonanlage die Hauptgeschosse mit den Freiflächen auf dem Dach und zu ebener Erde.
Die städtische Bauherrschaft hat eine in Bau und Betrieb nachhaltige Konzeption zur Maßgabe des Neubaus gemacht. Das Kita-Gebäude ist als Holzkonstruktion konzipiert; nur die Teilunterkellerung und die Brandwand am Anschluss zum Mäander werden aus Stahlbeton erstellt.
Das energetische Konzept basiert auf einer Wärmepumpe in Verbindung mit einer Fußbodenheizung.
Dem Thema der Begrünung kommt ein hoher Stellenwert zu. Neben den Freiflächen mit hohem Anteil entsiegelter Flächen weisen Dachfläche und Südfassade Begrünungen auf. Die Westfassade wird mit einem System intensiver Begrünung versehen.
Die zentrumsnahe Gesamtanlage ‚Marienplatz Darmstadt‘ verbindet die Darmstädter Innenstadt mit dem sog. Verlagsviertel und dem Campus der Hochschule Darmstadt. Stadtseitig erhält diese wichtige Ost-West-Verbindung ihren Auftakt als Hochpunkt durch das Wohnhochhaus, von dem aus eine Promenade nach Westen entlang der Mäanderbebauung (Geschosswohnungsbau) und der anschließenden Kita bis zur Fritz-Bauer-Straße führt.
Das städtebauliche Ensemble wird durch drei Bauherren auf drei Teilgrundstücken entwickelt: Hochhaus (Implenia Marienplatz Hochhaus GmbH), Mäander (Implenia II. Marienplatz Mäander GmbH) und Kita (Stadt Darmstadt).
Die Außenbereiche der Wohnbebauung werden durch die Figur der Gebäude zoniert. Die Freiflächen von Mäander und Hochhaus greifen ineinander über, sie sind nicht eingefriedet, sondern öffentlich durchwegt
Die gemeinschaftlich genutzten Dachgärten von Mäander und Sockelbau des Hochhauses liegen auf ähnlicher Höhe und bilden eine zweite freiräumliche Ebene. Mäander und Hochhaus sind ferner über ein gemeinsames Untergeschoss bzw. eine gemeinsame Tiefgarage miteinander verbunden.
Im Westen setzt das Kitagebäude die Mäanderstruktur fort und bildet deren Abschluss. Es ist jedoch konstruktiv wie funktional eigenständig. Städtebaulich bildet das Kitagebäude das ‚Gegenüber‘ zur denkmalgeschützten Friedenskirche. Mit seinen zwei Vollgeschossen und darüber liegendem Freiflächengeschoss wahrt es die Priorität der Kirche und vermittelt zugleich zwischen den Höhen der westlich anschließenden Bebauung entlang der Fritz-Bauer-Straße und den höheren Wohngebäuden des ‚Mäanders‘. Zugleich vermittelt das Kita-Grundstück topographisch zwischen dem Niveau der Fritz-Bauer-Straße und dem etwa 2 m höher liegenden Marienplatz-Areals. Entlang der nach Norden zur Hügelstraße orientierten Eingangsseite der Kita verläuft die nach Westen ansteigende Promenade.
Die 6-gruppige Kita ist in zwei Vollgeschossen organisiert. Im Erdgeschoss finden sich drei Krippengruppen, im Obergeschoss drei Gruppenbereiche für die älteren Kinder. Beide Geschosse sind durch einen großzügigen, zweigeschossigen Foyerbereich mit raumbreiter Treppenanlage verknüpft. Außerdem verbinden auch der Flucht dienende außenliegende Treppen in Kombination mit einer vor der Südfassade angeordnetem Balkonanlage die Hauptgeschosse mit den Freiflächen auf dem Dach und zu ebener Erde.
Die städtische Bauherrschaft hat eine in Bau und Betrieb nachhaltige Konzeption zur Maßgabe des Neubaus gemacht. Das Kita-Gebäude ist als Holzkonstruktion konzipiert; nur die Teilunterkellerung und die Brandwand am Anschluss zum Mäander werden aus Stahlbeton erstellt.
Das energetische Konzept basiert auf einer Wärmepumpe in Verbindung mit einer Fußbodenheizung.
Dem Thema der Begrünung kommt ein hoher Stellenwert zu. Neben den Freiflächen mit hohem Anteil entsiegelter Flächen weisen Dachfläche und Südfassade Begrünungen auf. Die Westfassade wird mit einem System intensiver Begrünung versehen.